PARDUODAMAS INVESTICINIS OBJEKTAS
OBJEKTO APRAŠYMAS:
• Adresas – Taikos pr. 119 A., Kaunas;
• Sklypo plotas -3,08 aro;
• Sklypo paskirtis – Kita;
• Naudojimo būdas – komercinės paskirties teritorijos;
• Sudaryta valstybinės žemės nuomos sutartis 2008-2058m.;
• Pastato bendras plotas – 385,31 m2;
• Statybinis tūris 3280 m3;
• Statino aukštis – 8,2 m;
• Pastato paskirtis – Aministracinė;
PASTATO APRAŠYMAS:
• Pasato tipas – mūrinis;
• Statybos metai – 1976;
• Rekonstrukcijos metai – 2022;
• Aukštų skaičius – 2 plius rūsys
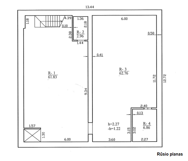
• Aukštų skaičius – rūsys 134,41 m2 ;
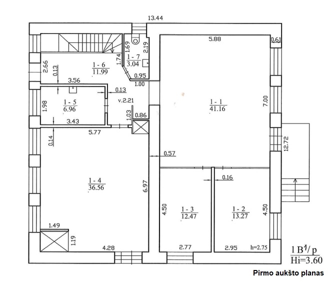
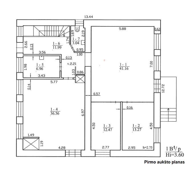
• Pirmas aukšto plotas – 125,45 m2 ;
• Antro aukšto plotas – 125,45 m2 ;
• San. mazgai – 2;
• Lubų aukštis – 3,60m
• Įrengimo lygis – įrengtas, tvarkingas;
• Atskiri įėjimai – 3
STATYBOS IR APDAILOS MEDŽIAGOS:
• Pamatai – betono;
• Pastato išorės apdaila – tinkas ;
• Vidinės sienos – plytų mūro,stiklinės, gipso plokštės ;
• Stogo danga – sutapdintas,dengtas ruloninė danga;
• Grindys – betonas, plytelės, laminuota danga ir PVC;
• Perdangos – monolitinė;
• Lubų apdaila – pakabinamos “Amstrong“ tipo;
• Langai – plastikiniai su stiklo paketais, išorei sumontuotos apsauginės žaliuzės;
• Įėjimo dūrys – plastikinių rėmų su stiklo paketais
• Vidaus durys – medinės, išorei sumontuotos apsauginės žaliužės;
SKLYPAS:
• Sklypo plotas – 3,08 arai;
• Sklypo paskirtis – kita (gyvenamosios teritorijos);
• Privažiavimas – asfaltuotas;
INŽINERINIAI TINKLAI:
• Šildymo tipas – rekuperacinė ir kondicionavimo, galimybė centralizuotas miesto;
• Šildymo išlaidos – 150~200 eurų;
• Vėdinimo sistema – rekuperacinė ir kondicionavimo;
• Vandentiekis – miesto;
• Kanalizacija – miesto;
• Apsaugos ir priešgaisrinė signalizacija – yra;
• Internetas – yra;
• Elektra – 20 kw.
Kilus bet kokiems klausimams, dėl šio objekto, maloniai prašau susisiekti žemiau nurodytais kontaktais.
Ona Ringaitytė
Nekilnojamojo turto brokerė
Tel. nr.:+370 688 16862
El. p. ona@dorlucrum.lt